Accueil
Prestations
Professionnels
Localisations
Actualités
Contact
Accueil
Prestations
Professionnels
Localisations
Actualités
Contact
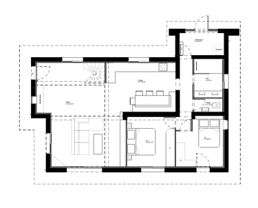
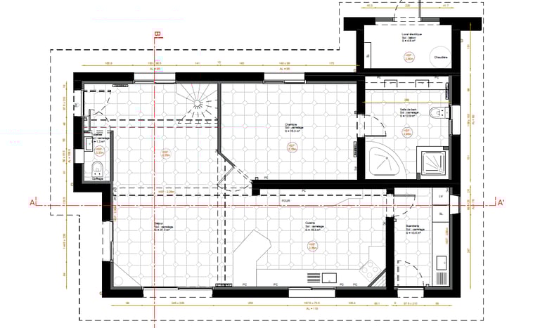
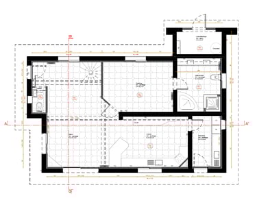
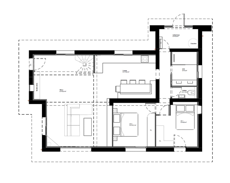
Projet Porcelaine
Soorts-Hossegor
Contact
ac.pleinsoleil@gmail.com
Suivez l'agence sur les réseaux sociaux
07 62 81 47 77
Alexandra Cervoise