Prestation d'architecture d'intérieur
Détails de la mission conception. Chaque étape peut être une mission indépendante.
Relevé d'état des lieux
Prise de cotes sur site et création des plans existants.
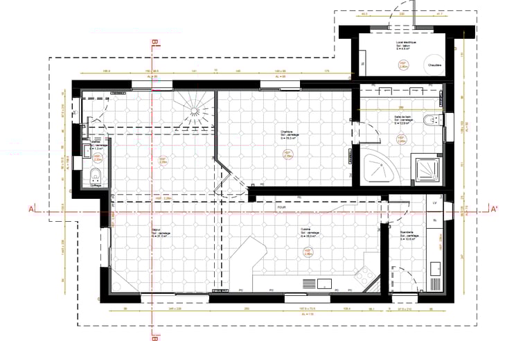
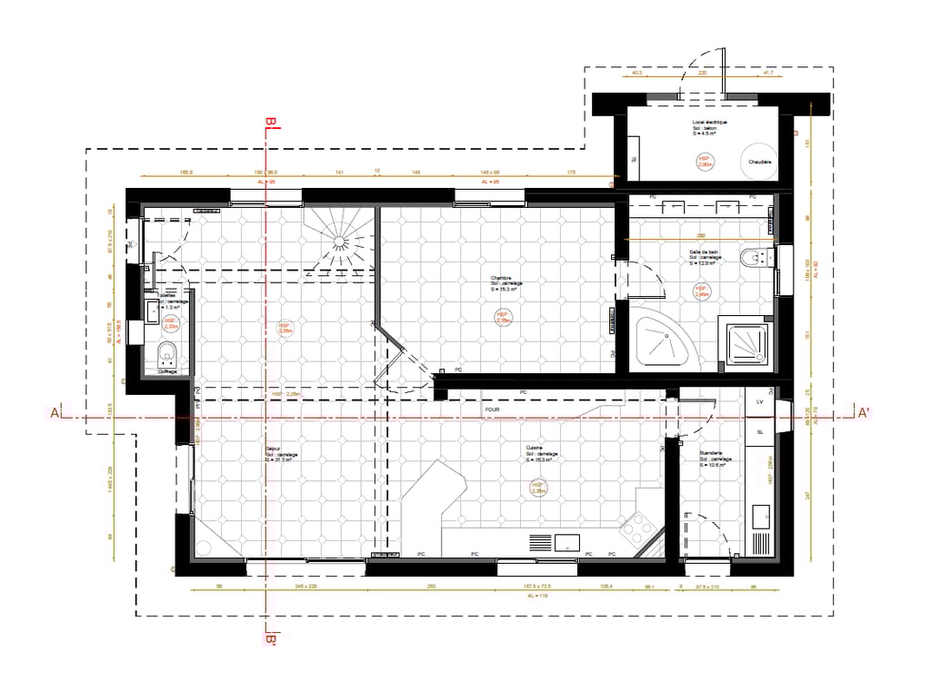
Plan projet
Proposition d'aménagement fonctionnel, confortable et esthétique (changement de destination des pièces, création d'ouverture, suppression et création de cloisons, etc...)
Modélisation 3D
Modélisation et rendus 3D permettant de vous aider à vous projeter au mieux dans votre projet.
Choix des matériaux
Accompagnement dans le choix détaillé des couleurs et des matériaux pour votre projet (revêtement de sol, mur, mobilier sur-mesure, etc...)
Dossier technique
Réalisation de dossiers techniques nécessaire à la préparation des travaux (Plan électricité, plomberie, sol, menuiserie, etc...).
DP et PC
Réalisation de dossiers administratifs tel que les demandes préalables de travaux et échanges avec les services de mairies pour assurer des projets viables.






